With its Simsbury location open for just a few weeks, the FunMax trampoline park franchise is looking to create another outlet in Windsor.
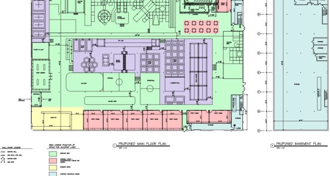
The plan is to convert a former Big Lots store into a recreation center with trampolines, foam pits, a Ninja course, children’s party rooms and more.
The West Hartford-based MJ Neiditz & Co. is proposing to renovate the large, empty retail building, the same way He Lin converted a vacant Bed Bath & Beyond store in Simsbury.
FunMax already operates in Wappinger’s Falls, NY and is planning a location in Indianapolis, IN as well.
All of the outlets feature a trampoline park, but beyond that the offerings vary by the building’s size. The New York location is 80,000 square feet, one of the largest indoor play centers in Dutchess County.
The Windsor facility would be roughly 43,800 square feet, occupying all of the building that went dark when Big Lots shut down in the summer of 2024. It’s in Windsor Plaza just north of the town’s Wilson section.
Neiditz and its architects, Middletown-based Hibbard & Rosa, have submitted plans showing a “free jump” space, a Ninja warrior course, a climbing wall, arcade area and small zip line.
The Windsor facility would also have basketball and football areas, a “floor is lava” play space, and indoor playground and a small swing bridge in the center of the building.
The center would have 25 employees working each shift, with two shifts per day, according to the zoning application.
“The first shift is from 10 a.m. to 3:30 p.m. and the second shift is from 3:30 p.m. to 9:30 p.m.,” wrote Carmelo Rosa, senior architect on the job. “The facility is open to the public seven days a week.”
FunMax’s planned sign at its Windsor location would replace the Big Lots one. (Courtesy of Town of Windsor)
Three weeks ago, the Simsbury franchise opened at Simsbury Commons with roughly 30,400 square feet. It advertises a dodgeball arena, Ninja course, rock wall, foam pits, trampolines, basketball, a three-level playground and arcade games.
As with virtually all trampoline parks, the operation requires customers to sign a liability waiver. It advertises party rooms that are primarily aimed at children’s birthday parties, and its website indicates that that part of the business is busy.
“Due to the high volume of parties we host each day, all parties include one hour of jump time and 45 minutes in the party room. Unfortunately, we are unable to offer additional room time on weekends unless your party is one of the last bookings of the day,” FunMax says.
Trampoline parks have opened in New Britain, Manchester, Middletown, Hamden, Waterbury, Waterford, Norwalk, Stamford, Trumbull and elsewhere over the past few years, with children’s indoor recreation facilities serving a growing bricks-and-mortar business.
The International Adventure and Trampoline Park Association reported the U.S. market in 2023 was valued at about $950 million, and projected annual growth of about 14% through 2033.
Indoor trampoline parks account for about 90% of the total industry, it said.
“The preference for indoor facilities is attributed to their controlled environments, which allow for year-round operations and enhanced safety measures,” the association reported, with the other 10 percent made up of outdoor parks. “While smaller in market share, outdoor parks continue to attract visitors seeking open-air recreational activities.”

